top of page


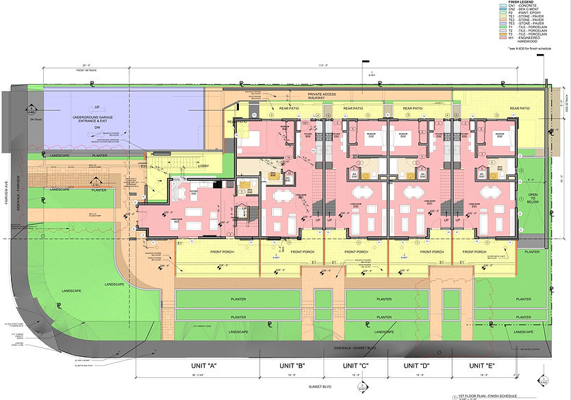
Fairview Residential Development
Year 2017 | Arcadia, California
El proyecto se propone en la esquina de Sunset y Fairview, en una parcela de 0.24 acres (excluyendo la zona vial dedicada) con una densidad permitida entre 1,749 y 1,945 pies cuadrados por unidad. Nuestro proyecto de condominios de 5 unidades se mantiene por debajo de la densidad máxima permitida.
Las estrategias arquitectónicas y paisajísticas propuestas celebran el carácter del vecindario al respetar la altura máxima permitida, diferenciar la identidad de cada unidad y maximizar el uso de los espacios exteriores ajardinados, como patios y balcones de entrada.


⸺
bottom of page